|
|
|
The Wakefield Estate Sale
By auction, at the Guildhall Northampton
Monday & Tuesday, Oct. 13th. & 14th. 1919
Commencing at twelve noon precisely each day
Peirce and Thorpe
|
|
Shutlanger
LOT 165
(Coloured BLUE on Plan No. 13.)

Shutlanger Grove. About 3 miles from Towcester and 3 ½ from Roade or Blisworth Stations.
A Farm of about 369 acres eminently suited for Stock breeding and Grazing, with a superior set of buildings 8 excellent covered yards, 2 cottages, and a fine house and garden in a delightful situation.
It is let on a Lady Day tenancy to Mr. W. F. Clarke, at the apportioned rent of £394 per annum.
The Timber is to be taken to at £920.
| Outgoings :- |
Tithe apportioned |
£92 4s 2 ¾d
|
|
Modus |
11s 6 ¾d
|
|
Land Tax |
£14 19s 0d
|
|
|
£107 14s 9 ½
|
The House and Homestead are brick built and slated, and have an excellent water supply, which comes by gravitation until near the Homestead, when it is lifted by a windmill.
The House contains on the first floor 8 bedrooms and w.c., and on the ground floor a tiled hall, 3 reception rooms, school room, and ample domestic offices. There are lawns and kitchen garden, with pleasant views, in front, and large open yard behind with many useful outbuildings, stable, coach house, and carpenter's shop.
The extensive and well built Farm Premises include a capital barn with 3 bays and 2 granaries, cow houses, calf places and pens, feeding stalls and boxes, root and hay rooms, a very good granary, 8 excellent covered yards, cart horse stable, 5 bay wagon hovel, and good rickyard with 5 thatched cow and calf boxes.
Two capital brick and tiled Cottages with good gardens and the same excellent water supply, are a short distance from the buildings.
This Lot has a water supply from Lot 166
LOT 166
(Coloured YELLOW on Plan No. 13.)

The Monastery Farm, Shutlanger, in the parish of Stoke Bruerne, covering 87a. 3r. 16p. on the Southern slope of the hill, and forming a very healthy holding of pasture land, with 9 acres of arable.
The House, recently let as tenements, is a very substantial ancient structure of some ten good rooms, with fine original groined porch and stone staircase.
The Farm Premises consist of two foddering yards, with slated shelter hovels, a cow house for 10, and a long barn.
| Farm |
Mr. W.F. Clarke |
78a 2r 18p
|
£88 0s 0d
|
| Pasture No. 62 |
Mr. Jabez Hailes |
4a 2r 25p
|
£5 0s 0d
|
| Do. No. 63 & 85 |
Mrs. Woodward |
4a 2r 13p
|
£6 12s 10d
|
|
|
A. 87a 3r 16p |
£99 12s 10d
|
The Timber is to be taken to at £377 10s 0d.
| Outgoings :- |
Tithe Apportionment - Farm |
£23 12s 5d
|
|
Land Tax - Hailes (Stoke Bruerne) |
1s 6d
|
|
Clarke (do.) |
5s 9d
|
|
Do. (Shutlanger) |
£3 1s 0d
|
|
Hailes (do.) |
4s 3d
|
|
Mrs. Woodward (do.) |
6s 3d
|
|
|
£27 11s 2d
|
The right of the Farmhouse and outbuildings on Lot 165 to the supply of water from Field 84 is reserved.
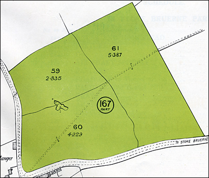
LOT 167
(Coloured GREEN on Plan No. 14.)

A stone and thatched Cottage of 7 rooms, kitchen and dairy, with bake-house, meal room and coal place, stone and slated cart hovel, stable for 2, 4 cow stalls, hay barn, foddering yard, open hovel and 2 pigstyes, rickyard, garden, small paddock and yard with well of water and 3 enclosures of pasture and arable land adjoining the Stoke Bruerne Road. This desirable Small Holding is let to Jabez Hailes at the apportioned rent of £25 17s 2d.
The Timber is to be taken to at £70.
| Outgoings :- |
Tithe apportionment |
£3 14s 0d |
|
Land Tax, apportioned |
£1 5s 0d |
The right for Lots 168, 169 and 170 to take water from the pump on Parcel 67 is reserved.
LOT 168
(Coloured YELLOW on Plan No. 14.)

A stone and thatched Cottage of 4 rooms, pantry, barn and gardens, let to E.F. Perkins at £3 net.
Land Tax :- 3/-
Water, see Lot 167
LOT 169
(Coloured BLUE on Plan No. 14.)

Two stone and thatched Cottages with Grocer's Shop, 3 rooms in one and 2 rooms in the other, with gardens running down to the brook, both let to Alfred Denney at £5 4s 0d net.
Land Tax :- 5/-
Water, see Lot 167
LOT 170
(Coloured RED on Plan No. 14.)

A stone and slated Cottage of 4 rooms, with w.c., barn in garden, let to :-
| Mr. T. Wotherspoon, at |
£6 10s 0d
|
| Also the garden ground in front, let to Mr. A. Denney, at |
£1 0s 6d
|
|
£7 10s 6d
|
Land Tax :- 3/-
Water, see lot 167
LOT 171
(Coloured BROWN on Plan No. 14.)

A row of three stone built Cottages (2 thatched, 1 slated), each with stone and tiled barns, and large gardens at front and rear, let to :-
| T. Inwood |
£3 10s 0d
|
|
| J. H. Boffin |
£2 12s 0d
|
|
| W. Chambers |
£3 0s 0d
|
|
|
£9 2s 0d
|
net |
LOT 172
(Coloured MAUVE on Plan No. 14.)

Two stone and thatched Cottages each of 4 rooms, standing back from the road in a large piece of garden ground, let to :-
| Mr. T. Wotherspoon |
£6 10s 0d
|
gross |
| Miss Jane Denney |
£2 12s 0d
|
net |
|
£9 2s 0d
|
|
LOT 173
(Coloured BLUE on Plan No. 14.)

Two stone built Cottages with garden, barns and premises, let to Mrs. Varney at £3 19s 6d net.
Land Tax :- 4/-
LOT 174
(Coloured BROWN on Plan No. 14.)

A piece of Garden Ground in front of the house adjoining the last Lot, with frontage of about 27 feet and a wood pail fence, let to John Denney at 2/6 gross.
LOT 175
(Coloured GREEN on Plan No. 14.)

A stone and thatched Cottage of 4 rooms, with barn and long garden, let to George White at £3 net.
The Timber is to be taken in addition at £10
Land Tax :- 3/-
|
|